- Kommuneplan
Endelig vedtagelse og bekendtgørelse af den nye Avannaata Kommuneplan 2018-2030 er sket den 20. december 2018.
xKommunalbestyrelsen i Avannaata Kommunia har på sit møde den 19. december 2018 vedtaget Kommuneplan 2018-2030 endeligt. Den endelige plan er tilrettet og færdiggjort på baggrund af inputs fra høringsfasen, hvorfor den på en række punkter adskiller sig fra planforslaget.
Kommuneplan 2018-2030 er desuden digital således, at alle – både borgere og virksomheder – let kan gå ind og se hvad der konkret gælder for dem. Det er også her man kan orientere sig om nye muligheder for arealanvendelse og byggeri, der kan understøtte den fort- satte udvikling af attraktive bolig- og erhvervsområder.
Alle udstedte og lovlige arealtildelinger samt alle tidligere godkendte detaljerede bestemmelser (og lokalplaner) vil dog fortsat være gældende, indtil de bliver afløst af nye.
Vi håber at alle vil tage godt imod og få glæde af den nye kommuneplan – ikke mindst som et vigtigt fælles værktøj til fortsat at sikre en gunstig og bæredygtig udvikling af Avannaata Kommunia. Kommuneplanen skal være tilgængelig for så mange som muligt. Derfor foreligger planen på både grønlandsk, dansk og engelsk.
Yderligere information:
Hanne Holm Andersen
Strategisk Udvikling & Sektorplaner, Planchef
Tlf. (+299) 38 76 76
hha@avannaata.gl
Følg med i vores planlægning
http://plania.avannaata.gl/
http://kommuneplania.avannaata.gl/
- Kommuneplantillæg og perspektivplan

Kommuneplantillæg nr. 63 – Udvidelse af område til bolig- og turismeformål ved Sermermiut er vedtaget
Kommunalbestyrelsen valgte på deres møde 17. marts 2026, at vedtage Kommuneplantillæg nr. 63, ILU1200-C21, ”Sermermiut Aqqutaa Centerområde”. Kommuneplantillægget er offentligt bekendtgjort den 27.03.2026.
Formål
Kommuneplantillæggets primære formål er at at udvide området ved Sermermiut Aqqutaa til bolig-, turisme- og serviceformål. Baggrunden hertil er for at imødekomme ansøgninger fra borgere og erhvervsaktører, der ønsker at etablere personaleboliger, turistindkvartering, liberalt erhverv m.v. Området ligger tæt ved Isfjordcentret og UNESCO-området, som tiltrækker både turister, forskere og lokale.
Kommuneplantillæg nr. 63 tillader at delområde C21 udvides mod øst, vest og syd. Hermed vil noget areal fra erhvervsområde B07, samt hundeområderne D02 og D12, blive en del af centerområdet. Det nye delområde vil styrke områdets mulighed for turistindkvartering, liberalt erhverv m.m.
Udvidelsen omfatter:
- 730 m² af det friholdte område D02 (hundeområdet)
- 2.960 m² af erhvervsområdet B07
- Ca. 2.400 m² fra D12 (hundeområdet)
Samlet øges delområde C21 fra ca. 24.000 m² til ca. 30.000 m².
I forbindelse med den offentlige bekendtgørelse af Kommuneplantillæg nr. 63, vil der hertil frigøres byggefelter i området til indkvartering af turister og personale.
Det vedtagne tillæg kan læses her:
Kommuneplantillæg nr. 63 ”Sermermiut Aqqutaa Centerområde”
Kommuneplantillægget har været i høring i 8 uger og dernæst 6 uger, inden for hvilke borgere, virksomheder, institutioner, foreninger m.fl. har haft mulighed for at fremsætte indsigelser, bemærkninger og ændringsforslag.
Råd og vejledning kan fås ved henvendelse til planafdelingen. Planafdelingen kan kontaktes på Plan@avannaata.gl

Kommuneplantillæg nr. 62, ”Udvidelse af kirkegården”, Qeqertaq, er vedtaget.
Kommuneplantillæg nr. 62 for delområde 1202-D01, er offentligt bekendtgjort den 07.01.2026, fra hvilken dato kommuneplantillægget har retsvirkning.
Da kirkegården næsten er fuldt udnyttet, muliggør man med nærværende kommuneplantillæg en udvidelse af kirkegården, der sikrer areal til fremtidige, nye grave.
Kommuneplantillæg nr. 62 kan læses her.
Kommuneplantillæggets formål
Behovet for at revidere kommuneplantillægget stammer fra en henvendelse fra Menighedsrådet, da Qeqertaq kirkegård er ved at løbe tør for gravplads. Med nærværende kommuneplantillæg, muliggøres en udvidelse af kirkegården i vestlig retning, da der i andre retninger enten ligger større sten i vejen, eller der er for lav jorddybde til nye grave.
Kirkegårdens areal udvides fra nuværende 6.250 kvm til 12.500 kvm, hvor areal af det tilstødende friholdt delområde 1202-D02, omlægges til kirkegårdens 1202-D01.
For spørgsmål kontakt venligst planafdelingen på plan@avannaata.gl

Kommuneplantillæg nr. 59 – Kullorsuaq Kirkegård er vedtaget
Kommunalbestyrelsen i Avannaata Kommunia har vedtaget Kommuneplantillæg nr. 59, KLQ1607-D3 ”Kullorsuaq Kirkegård”.
Formål
Kommuneplantillæggets primære formål er at skabe mere plads til kirkegården, som står over for pladsmangel. Med tillægget udvides kirkegårdens delområde D03 mod sydøst, ind over en mindre del af boligområdet A01. Udvidelsen tilfører kirkegården ca. 1.000 m², så den fremover får et samlet areal på 5.888 m².
Det vedtagne tillæg kan læses her:
Forslag til kommuneplantillæg nr. 59
Kommuneplantillægget har været i høring i 8 uger, inden for hvilke borgere, virksomheder, institutioner, foreninger m.fl. har haft mulighed for at fremsætte indsigelser, bemærkninger og ændringsforslag.
Råd og vejledning kan fås ved henvendelse til planafdelingen. Planafdelingen kan kontaktes på Plan@avannaata.gl

Kommuneplantillæg nr. 60, Boligområde ved Niels Dorph-ip Aqq, Ilulissat, er vedtaget.
Kommuneplantillæg nr. 60 for delområde 1200-A21, er på baggrund af endelig vedtagelse hos Kommunalbestyrelsen, offentligt bekendtgjort den 19.09.2025, fra hvilken dato kommuneplantillægget har retsvirkning.
På baggrund af en ansøgning, om opførelse af et anneks i boligområdet, ved Niels Dorph-ip Aqq., er det med nærværende kommuneplantillæg muliggjort at alle husejere i området, får mulighed for at søge om tilsvarende byggeri.
Det reviderede kommuneplantillæg fastsætter kun nye bestemmelser for detailområde 1200-A21.1, den resterende del af delområdet forbliver uændret.
Kommuneplantillæg nr. 60 kan læses her
Kommuneplantillægget muliggør at hver indehaver af et eksisterende hus i delområdet, kan søge om arealtildeling til et anneks. Et anneks anses for at være en udvidelse af huset, som kan være fritliggende eller en direkte tilbygning til huset. Hvert anneks må udgøre op til 50 kvadratmeter.
For spørgsmål kontakt venligst planafdelingen på mail: plan@avannaata.gl
Kommuneplantillægget er vedtaget d. 11.04.2025, fra hvilken dato kommuneplantillægget har retsvirkning. Kommuneplantillægget er offentlig bekendtgjort d. 20.20.2025, og kan læses ved at trykke Her.
Kommuneplantillæggets formål
Kommuneplantillæg nr. 57 muliggør at udlægge nye byggefelter indenfor detailområde B2.1. De nye byggefelter forbeholdes ansøgeren, Halibut Greenland ApS, så virksomheden kan sikre et sammenhængende og effektivt produktionsområde til udvidelsen af deres fiskefabrik.
Kommuneplantillægget har været i offentlig høring i 6 uger, inden for hvilke borgere, virksomheder m.fl. har haft mulighed for at fremsætte indsigelser, bemærkninger og ændringsforslag.
Kontakt
Teknisk Forvaltning / Planafdelingen kan kontaktes, via dette link: plania@avannaata.gl.
Kommuneplantillæg nr. 61, Boligområde ved Jørgen Guldager-ip Aqqutaa, Ilulissat, er vedtaget.

Kommuneplantillæg nr. 61 for delområde 1200-A10, er offentligt bekendtgjort den 19.06.2025, fra hvilken dato kommuneplantillægget har retsvirkning.
Sygehuset i Ilulissat mangler indkvartering til tilrejsende patienter og personale. Derfor muliggøres der med dette kommuneplantillæg, sanering af de tomme og utidssvarende sygeplejeboliger på Edvard Sivertsen-Ip Aqquserna, med efterfølgende opførelse af ny etagebebyggelse, primært til Sundhedsvæsnets indkvartering.
Kommuneplantillæg nr. 61 kan læses her.
Kommuneplantillæggets formål
Kommuneplantillæggets formål er at udlægge nye byggemuligheder, hvis brug afhænger af sanering af eksisterende bebyggelse ved B-125. Dermed muliggøres Sundhedsvæsnets byggeri af ny patientindkvartering på Edvard Sivertsen-Ip Aqquserna.
Der foretages mindre ændringer af byggefelternes placering og omfang. På de nye byggefelter tillades byggeri i op til tre etager.
Det reviderede kommuneplantillæg udlægger kun nye muligheder i detailområde 1200-A10.2. Detailområde 1200-A10.1 for ‘De sorte blokke‘ på Jørgen Guldager-ip Aqqutaa forbliver uændret.

For spørgsmål kontakt venligst planafdelingen på mail: plan@avannaata.gl

Kommuneplantillæg nr. 31, nyt centerområde i Ilulissat, er vedtaget.
Kommuneplantillægget er offentligt bekendtgjort den 30.04.2025, fra hvilken dato kommuneplantillægget har retsvirkning.
Ved Hafnarfjordur-ip Aqq. etableres der med dette kommuneplantillæg nyt centerområde der ligger sig mellem Nammaarfik og Qoororsuup Aqq., ved at sammenlægge dele af tre eksisterende delområder.
Delområdets primære formål er at muliggøre nyt boligbyggeri, da efterspørgslen efter boliger er stor i Ilulissat. Der udlægges fire nye byggefelter til punkthuse, primært til boligformål. Punkthuse defineres som fritliggende bygninger, med flere etager, flere lejligheder og med mulighed for at etablere erhverv i stueetagen.
Kommuneplantillægget kan læses her
For yderligere spørgsmål kontakt planafdelingen. Planafdeling kan kontaktes på Plan@avannaata.gl.
Ledige byggefelter
Det bekendtgøres hermed, at der kan der søges om arealtildeling til fire nye, ledige byggefelter:
Byggefelt nr. 1, 2, 3, 4 til punkthuse i op til fem etager og med minimum 80 % boliger, annonceres ledige i 6 uger i henhold til kommuneplanens bestemmelse §5.2 om ledige byggefelter til bolig- og foreningsformål.
Tids- og aktivitetsplan
30.04.2025: Fra og med denne dato kan der indsendes arealansøgninger til byggefelterne.
11.06.2025: Kl. 16:00 lukker første omgang af modtagelse af arealansøgninger til byggefelterne.
Hvis der på den annoncerede deadline indkommer flere kvalificerede ansøgere til det samme areal, vil det blive afgjort ved lodtrækning, hvem der får arealreservationen. Lodtrækningen vil blive foretaget med offentlig adgang.
Ansøgere vil blive informeret om, hvor og hvornår lodtrækningen finder sted.
Yderligere oplysninger kan indhentes hos Forvaltningen for Teknik (Teknikkeqarfik), Arealadministration på areal@avannaata.gl.
Ansøgning om arealreservation skal sendes til Arealadministration, Teknikkeqarfik, Noah Mølgårdip aqq. 9, Postboks 1023, 3952 Ilulissat, eller elektronisk via https://www.nunagis.gl/arealans%C3%B8gning eller på mail til: areal@avannaata.gl.
Kommuneplantillæg nr. 56, ’Boligområde ved Illuigaq’, Uummannaq
Kommuneplantillægget er offentlig bekendtgjort d. 04.04.2025, fra hvilken dato kommuneplantillægget har retsvirkning. Kommuneplantillæg kan læses her:
Kommuneplantillæg nr 56
Kommuneplantillæggets formål
Hovedformålet med kommuneplantillæg nr. 56, er at udlægge et nyt byggefelt inden for delområde A12.1, for at muliggøre opførelse af flere boliger. Byggefeltet til de 4 nye lejeboliger forbeholdes offentlige boliger, efter ansøgning fra Naalakkersuisut. Placeringen for de 4 nye lejeboliger er valgt i samråd med lokaludvalget i Uummannaq. Den eksisterende legeplads bliver hertil flyttet til ny placering i detailområde A12.1, således denne også placeres mere hensigtsmæssig for børn.
Kommuneplantillægget har været i offentlig høring i 6 uger, inden for hvilke borgere, virksomheder m. fl. Har haft mulighed for at fremsætte indsigelser, bemærkninger og ændringsforslag.
Kontakt
Teknisk Forvaltning/Planafdelingen kan kontaktes, via dette link: plania@avannaata.gl.
Kommuneplantillæg nr. 54 QNQ1700-D05 "Hundefrit rekreativt område ", Qaanaaq
Kommuneplantillægget er offentligt bekendtgjort den 04.04.2025, fra hvilken dato tillægget har retsvirkning.
Kommuneplantillæg nr. 54 kan læses her:
Kommuneplantillæggets formål
Kommuneplantillæg nr. 54 er udarbejdet, på baggrund af et ønske fra lokaludvalget i Qaanaaq, om at etablere et bestemt område til et hundefrit område. Formålet med dette kommuneplantillæg er at gøre området ved kysten og nær elven, til et rekreativt hundefrit delområde. Dette område, er et sted hvor mange mennesker kommer for at fiske ørred, og for at nyde naturen omkring kysten. Ved at gøre området hundefrit, vil der kunne fiskes i fred og den naturlige bestand af ørred kan undgå at blive forstyrret af hundehold.
Kommuneplantillægget har været i offentlig høring i 6 uger, inden for hvilke borgere, virksomheder m.fl. har haft mulighed for at fremsætte indsigelser, bemærkninger og ændringsforslag.
Kontakt
Teknisk Forvaltning/Planafdelingen kan kontaktes, via dette link: plania@avannaata.gl
Kommuneplantillæg nr. 52, centerområde i Ilulissat.
Kommuneplantillægget er offentligt bekendtgjort den 18.02.2025, fra hvilken dato kommuneplantillægget har retsvirkning.
For yderligere spørgsmål kontakt planafdelingen. Planafdeling kan kontaktes på Plan@avannaata.gl.
Ledige byggefelter
Samtidigt bekendtgøres det hermed, at der kan der søges om arealtildeling til de ledige byggefelter:
Byggefelterne nr. 1 og 2 til boliger, annonceres ledigt i 3 uger i henhold til kommuneplanens bestemmelse §5.2 om ledige byggefelter til bolig- og foreningsformål.
Tids- og aktivitetsplan
18.02.2025: Fra og med denne dato kan der indsendes arealansøgninger til byggefelterne.
11.03.2025: Kl. 16:00 lukker første omgang af modtagelse af arealansøgninger til byggefelter nr. 1 og 2.
Hvis der på den annoncerede deadline indkommer flere kvalificerede ansøgere til det samme areal, vil det blive afgjort ved lodtrækning, hvem der får arealreservationen. Lodtrækningen vil blive foretaget med offentlig adgang.
Ansøgere vil blive informeret om, hvor og hvornår lodtrækningen finder sted.
Yderligere oplysninger kan indhentes hos Forvaltningen for Anlæg og Miljø (Teknikkeqarfik), Arealadministration på areal@avannaata.gl.
Ansøgning om arealreservation skal sendes til Arealadministration, Teknikkeqarfik, Noah Mølgårdip aqq. 9, Postboks 1023, 3952 Ilulissat, eller elektronisk til areal@avannaata.gl.
Ny byggefelter i Ilulissat.
Kommuneplantillæg nr. 50, Boligområde i Ilulissat nord.
Kommuneplantillægget er offentligt bekendtgjort den 11.12.2024, fra hvilken dato kommuneplantillægget har retsvirkning.
Byggefelt nr.31 er foreslået som erstatningsbyggefelt for fjernet byggefelt nr.24.
Kommuneplantillægget kan læses ved at følge dette link: bit.ly/OBA30
For yderligere spørgsmål kontakt planafdelingen. Planafdeling kan kontaktes på Plan@avannaata.gl.
Ledige byggefelter
Samtidigt bekendtgøres det hermed, at der kan der søges om arealtildeling til de ledige byggefelter:
Byggefelterne nr. 8, 27,28,29,30,31 til boliger annonceres ledigt i 3 uger i henhold til kommuneplanens bestemmelse §5.2 om ledige byggefelter til bolig- og foreningsformål.
Byggefelterne nr. 12,13 til garager annonceres ledigt i 3 uger, og kan kun ansøges i tilknytning til boliger i delområde A30.
Byggefelt nr. 29 (dagligvarebutik) annonceres ledigt i 6 uger i henhold til kommuneplanens bestemmelse §5.3 om ledige byggefelter til erhvervs- og institutionsformål.
Tids- og aktivitetsplan
11.12.2024: Fra og med denne dato kan der indsendes arealansøgninger til byggefeltet.
02.01.2025: Kl. 16:00 lukker første omgang af modtagelse af arealansøgninger til byggefelterne nr. 8, 12,13,27,28,29,30,31.
22.01.2025: Kl. 16:00 lukker første omgang af modtagelse af arealansøgninger til byggefelt nr. 29 (dagligvarebutik).
Hvis der på den annoncerede dead-line indkommer flere kvalificerede ansøgere til det samme areal, vil det blive afgjort ved lodtrækning, hvem der får arealreservationen. Lodtrækningen vil blive foretaget med offentlig adgang.
Ansøgere vil blive informeret om, hvor og hvornår lodtrækningen finder sted.
Yderligere oplysninger kan indhentes hos Forvaltningen for Anlæg og Miljø (Teknikkeqarfik), Arealadministration på areal@avannaata.gl.
Ansøgning om arealreservation skal sendes til Arealadministration, Teknikkeqarfik, Noah Mølgårdip aqq. 9, Postboks 1023, 3952 Ilulissat, eller elektronisk til areal@avannaata.gl.
Ilulissat Bymidte - Noah Mølgaardip Aqqutaa Detailområdeplan for område ILU 1200-C17.3.
Baggrunden for kommuneplantillæggets udarbejdelse er et ønske fra kommunalbestyrelsen om at muliggøre byggeri af det nye brættet i detailområde C17.3.
Kommuneplantillæg er offentliggjort den 09.12.2024
Kommuneplantillægget kan læses ved at følge dette link: bit.ly/C17_3OB
For yderligere spørgsmål kontakt planafdelingen. Planafdeling kan kontaktes på Plan@avannaata.gl.
Kommuneplantillæggets formål
Kommuneplantillæggets primære formål er at oprette et enkelt nyt byggefelt i detailområde C17.3, med afsæt i ønske fra kommunalbestyrelsen.
Byggefelt kan være udnyttet til at bygge brættet, sådan at det vil være tæt på havnen.
Perspektivplan for ILU1200- A34, Ilulissat
Perspektivplanen er udarbejdet på baggrund af rammerne i udviklingsplanen for Ilulissat Nord, der blev godkendt af kommunalbestyrelsen i 2021.
Perspektivplanen sikrer således, at ønsket til områdets fremtidige anvendelse som boligområde, bliver en del af kommuneplanen.
Perspektivplan for ILU1200-A34 er offentlig bekendtgjort den 11.11.2024, fra hvilken dato perspektivplanen har retsvirkning.
Perspektivplan kan læses ved at følge dette link: bit.ly/1200-A34
Perspektivplanen lægger op til, at en del af det nuværende friholdte område (delområde D11) i fremtiden ændres til et nyt boligområde (delområde A34). Derudover sikre perspektivplanen, at en del af det firholdte område bevares ved vandsøen, til fremtidige rekreative formål.
Det nye delområde kan ikke bebygges, før der er udarbejdet overordnede bestemmelser for delområdet.
For yderligere spørgsmål kontakt planafdelingen. Planafdeling kan kontaktes på Plan@avannaata.gl.
Perspektivplan for ILU1200-C31, Ilulissat
Perspektivplanen er udarbejdet på baggrund af rammerne i udviklingsplanen for Ilulissat Nord, der blev godkendt af kommunalbestyrelsen i 2021.
Perspektivplanen sikrer således, at ønsket til områdets fremtidige anvendelse som centerområde, bliver en del af kommuneplanen.
Perspektivplan for ILU1200-C31 er offentlig bekendtgjort den 11.11.2024, fra hvilken dato kommuneplantillægget har retsvirkning.
Perspektivplan kan læses ved at følge dette link: bit.ly/1200-C31
Perspektivplanen kan således også udgøre et vigtigt grundlag for arbejdsgruppen, der netop arbejder for en fremtidig svømmehal i byen.
Perspektivplanen lægger op til, at en del af det nuværende friholdte område (delområde D11) i fremtiden ændres til et nyt centerområde (delområde C31).
Det nye delområde kan ikke bebygges, før der er udarbejdet overordnede bestemmelser for delområdet.
For yderligere spørgsmål kontakt planafdelingen. Planafdeling kan kontaktes på Plan@avannaata.gl.
Kommuneplantillæg nr. 39 for Delområde 1200-A33, ”Boligområde i Ilulissat ved Qupaloraarsuk og Illumiut” er vedtaget.
Kommuneplantillægget er offentligt bekendtgjort den 02.10.2024, fra hvilken dato kommuneplantillægget har retsvirkning.
Kommuneplantillægget er udarbejdet på baggrund af en sammenlægning af tre bolig områder med delområde C6. Herved forenkles administrationen af det nye samlede delområde A33.
Kommuneplantillægget kan læses ved at følge dette link: bit.ly/A33OB
For yderligere spørgsmål kontakt planafdelingen. Planafdeling kan kontaktes på Plan@avannaata.gl.
Ledige byggefelter
Samtidigt bekendtgøres det hermed, at der kan der søges om arealtildeling til de ledige byggefelter:
Byggefelterne nr. 3,11 til boliger annonceres ledigt i 3 uger i henhold til kommuneplanens bestemmelse §5.2 om ledige byggefelter til bolig- og foreningsformål.
Tids- og aktivitetsplan
02.10.2024: Fra og med denne dato kan der indsendes arealansøgninger til byggefeltet.
23.10.2024: Kl. 16:00 lukker første omgang af modtagelse af arealansøgninger til byggefelterne nr. 3,11.
Hvis der på den annoncerede dead-line indkommer flere kvalificerede ansøgere til det samme areal, vil det blive afgjort ved lodtrækning, hvem der får arealreservationen. Lodtrækningen vil blive foretaget med offentlig adgang.
Ansøgere vil blive informeret om, hvor og hvornår lodtrækningen finder sted.
Yderligere oplysninger kan indhentes hos Forvaltningen for Anlæg og Miljø (Teknikkeqarfik), Arealadministration på areal@avannaata.gl.
Ansøgning om arealreservation skal sendes til Arealadministration, Teknikkeqarfik, Noah Mølgårdip aqq. 9, Postboks 1023, 3952 Ilulissat, eller elektronisk til areal@avannaata.gl.
Kommuneplantillægget er offentligt bekendtgjort den 04.04.2024, fra hvilken dato tillægget har retsvirkning.
Kommuneplantillæggets formål:
Formålet er at muliggøre, at der kan bygges i op til 2 etager i Delområde C16, således at området udvikles i en ny retning og blandt andet kan imødekomme et øget behov for arealer til centerformål, med anvendelse til blandt andet liberalt erhverv, butiksformål, hoteller, indkvartering, boliger og lignende.
Konkret er formålet at ændre anvendelsen af det nuværende centerområde, således at det er muligt, at bygge i to etager og dermed flere kvadratmeter inden for de allerede eksisterende byggefelter.
Med dette kommuneplantillæg gives der mulighed for udvidelse af indkvarteringen på Blue Trail Guesthouse. For at sikre den rette anvendelse af C16 som et centerområde, bliver området omkring Blue Trail Guesthouse forskønnet fremadrettet, i form af skærpede krav om et visuelt og ryddeligt udtryk, der lever op til de forventninger, man har til et Centerområde.
Kommuneplantillægget kan læses ved at følge dette link: Kommuneplantillæg nr. 49
Kontakt Teknisk Forvaltning/Planafdelingen via dette link: Plania@avannaata.gl


Kommuneplantillæg nr. 15: ”Erhvervsområde Ilulissat Nord” 1200-B04 er vedtaget.
Kommuneplantillægget er offentligt bekendtgjort den 04.04.2024, fra hvilken dato kommuneplantillægget har retsvirkning.
Kommuneplantillægget kan læses ved at følge dette link: bit.ly/B04-OB
Kommuneplantillæget tager afsæt i Udviklingsplanen for Ilulissat Nord og udlægger et større erhvervsområde, Delområde B04, i det ubebyggede område mellem lufthavnsvejen og dumpen.
Kommuneplantillæggets formål
Inden for erhvervsområdet sikres arealer til både oplag og bebyggelse samt udlæg af veje, hvilket sker ud fra en helhedsplanlægning så pladsen udnyttes så hensigtsmæssigt som muligt.
Forslaget har tidligere været udsendt i to høringer og er blevet revideret på baggrund af de indkomne hørringssvar, især grundet ændrede krav for sikkerhedszonerne omkring den kommende lufthavn. Følgende dele af forslaget er ændret:
- Nogle oplagsarealer, byggefelter og vejudlæg er bortfaldet eller har ændret placering
- Maksimale bygningshøjder og kipkoter er ændret for størstedelen af byggefelterne.
Annoncering af ledige byggefelter vil finde sted senere på året.
De nye byggefelter vil blive annonceret som ledige i første halvdel af året. Dette betyder, at det ikke er muligt at søge de nye byggefelter før annonceringen sker. Til den tid vil det blive muligt at søge byggefelter markeret med grå, og som ligger i etape 1. Byggefelter vil blive pålagt en byggemodningsafgift, som vist i kommuneplantillægget. For yderligere spørgsmål kontakt planafdelingen. Planafdeling kan kontaktes på Plan@avannaata.gl.
Offentlig bekendtgørelse - Kommuneplantillæg nr. 43 for Delområde ILU 1200-C30, ”Centerområde ved Konrad Chemnitzip Aqq”, Ilulissat er endeligt vedtaget.
Kommuneplantillægget er offentligt bekendtgjort den 04.03.2024, fra hvilken dato tillægget har retsvirkning.
Kommuneplantillæggets formål
Kommuneplantillægget udlægger et nyt centerområde ved delvis konvertering af det eksisterende erhvervsområde B07. Det nye centerområde muliggør en byfornyelse af området ved bl.a. etablering af liberalt erhverv og butikker i kombination med boliger.
Foruden nye bebyggelsesregulerende bestemmelser udlægges areal for forbedrede trafikale vilkår med særlig fokus på de mange bløde trafikanter, der dagligt passerer igennem området til fx Jørgen Brønlund Skolen.
Dette betyder, at fremtidens tunge erhverv samt flere af de nuværende aktiviteter i B07 i fremtiden placeres uden for Ilulissats centrum.
Arealrettighedshavere i området kan fortsætte deres drift i nuværende omfang, men kun udvide erhvervet, hvis det er i overensstemmelse med de nuværende bestemmelser.
Ydermere er formålet at muliggøre byggeri helt ud til byggefeltsgrænsen, så længe det sker med naboens accept, og således at arealindehaveren af nabobyggefeltet ikke forhindres i at gøre det samme, herunder at afskære adgangen til bagvedliggende byggefelter.
Vejledning
Kommuneplantillægget kan læses ved at følge dette link: Kommuneplantillæg nr. 43 Ilu-1200C30
Kontakt
Teknisk Forvaltning/Planafdelingen via dette link: plania@avannaata.gl
Eksisterende forhold til venstre. Til højre, maksimal udnyttelse ved nye bestemmelser.
Kommuneplantillæg for udvidelse af kirkegården, Delområde D06 i Uummannaq, er vedtaget
Kirkegården i Uummannaq behøver for en udvidelse for at skabe plads til fremtidige grave. Arealet for kirkegården skal udvides i nordøstlig retning.
Udvidelsen af kirkegården gør at Delområde E07 bliver inkluderet i delområde D06.
Tidsplan.
Nye grave bliver klar til at tage i brug i sommeren 2024.
Vejledning
Råd og vejledning kan fås ved henvendelse til Planafdelingen på mail: plania@avannaata.gl.
Kommuneplantillæg 40, ”Nyt elværk i 1500-E13 i Uummannaq” er vedtaget.
Uummannaq Elværk er forældet, så for at sikre en stabil drift i fremtiden, skal der gøres plads til et nyt elværk i Uummannaq.
Det eksisterende elværk i centrum af Uummannaq skal bibeholdes som backupfacilitetet.
Det nye elværk skal placeres mellem det børnehjemmet og vandspærrezonen mod nordvest.
Kommuneplantillægget ændrer på delområdets samlede anvendelse, fra friholdte område (D08) til nyt delområde for Tekniske anlæg og infrastruktur (E13), til nyt elværk.
Området med det nye elværket grænser op til vandspærrezonen i Delområde D08 nord/vest og Delområde C05 i syd/øst. Vejanlæggets placering og udformning justeres ligeledes fra Radioqarfiup Aqqutaa, mellem B-nr. 1536 og B-nr. 1698.
Delområdet skal bruges af Nukissiorfiit til bygning og drift af et nyt elværk.
Kommuneplantillæg nr. 41, for Delområde 1200-C29, Ny delområde i Ilulissat Nord er vedtaget.
Kommuneplantillægget er udarbejdet på baggrund af et ønske om at få mere centerområde uden for bymidten. Et nyt delområde er udlagt, kun med overordnede bestemmelser, med henblik på anvendelse til center- og hotelformål.
Kommuneplantillæggets formål
Kommuneplantillæggets primære formål er, at udlægge ny centerområde med center og hotel formål.
Derfor udlægges et nyt centerområde på Nordre Næs. Med det kommuneplantillæg fastlægges nye overordnede bestemmelser for C29 Centerområde i Ilulissat Nord.
Kommuneplantillægget kan læses ved at følge dette link: https://bit.ly/KPT41C29
Kommuneplantillægget kan ses på kommunens hjemmeside www.avannaata.gl eller på kommuneplanens hjemmeside https://kommuneplania.avannaata.gl/dk/hoeringer/godkendt/
Kommuneplantillæg nr. 48 er vedtaget.
"Uummannatsiaq“ i Delområde 0003-L08 -Det åbne land.
Kommuneplantillægget har til formål at skabe mulighed for opførelse af flere hytter og teltplatforme i området.
Kommuneplantillægget er offentligt bekendtgjort den 15.11.2023, fra hvilken dato kommuneplantillægget har retsvirkning.
Kommuneplantillæggets formål.
Kommunen ønsker at give borgere og lokale turistoperatører bedre mulighed for at anvende Uummannatsiaq til rekreative formål.
Området er en gammel bygd som har stor værdi for mange, men er i risikozonen for tsunami.
Det nye kommuneplantillæg definerer tsunami sikkerhedszoner for byggeri og giver mulighed for at bebygge områder tættere på kystlinjen end de 100 m som er gældende nu. Kommuneplantillægget tillader også midlertidige teltplatforme og tættere bebyggelse end tidligere.
Med kommuneplantillægget muliggøres arealtildeling til det ansøgte projekt, der har fået meddelt arealreservation.
Kommuneplantillægget kan ses på kommunens hjemmeside www.avannaata.gl eller på kommuneplanens hjemmeside: https://avannaata.cowiplan.dk/media/4424/ob-kpt-48-0003-l08.pdf

Kommuneplantillæg nr. 34, Boligområde i Ilulissat nord er vedtaget.
Planen omfatter en opdatering af delområdets byggefelter, herunder udlæg af nye byggefelter, justering af eksisterende byggefelter samt ændring af vejudlæg.
Kommuneplantillæg nr. 34 er offentligt bekendtgjort den 27.09.2023.
Kommuneplantillæg nr.34, ILU1200-A30 ”Boligområde i Ilulissat nord”, Ilulissat
Kommuneplantillæggets formål
Kommuneplantillægget har til formål at muliggøre en retslig lovliggørelse af en delvis opført garage. Kommuneplantillægget udlægger nye byggefelter til garager og mindre bygninger og fastlægger retningslinjer for opførelse af udhuse, skure og garager, således at principperne fremgår tydeligere end tidligere.
Kommuneplantillægget har også til formål at udvide delområdet med et mindre areal mod nord. Delområdet udvides mod nord i to retninger: en lille del af Delområde D11 indlemmes i Delområde A30 og en lille del af Delområde A29 indlemmes i Delområde A30. Derudover har kommuneplantillægget til formål at udvide et eksisterende byggefelt og give mulighed for yderligere opførelse af boliger ved udlægning af nye byggefelter til enfamiliehuse.
Ledige byggefelter
Samtidigt bekendtgøres det hermed, at der kan der søges om arealtildeling til de ledige byggefelter:
Byggefelterne nr. 24,27,28,30 til boliger annonceres ledigt i 3 uger i henhold til kommuneplanens bestemmelse §5.2 om ledige byggefelter til bolig- og foreningsformål.
Byggefelterne nr. 12,13 til garager annonceres ledigt i 3 uger, og kan kun ansøges i tilknytning til boliger i delområde A30.
Byggefelt nr. 29 (dagligvarebutik) annonceres ledigt i 6 uger i henhold til kommuneplanens bestemmelse §5.3 om ledige byggefelter til erhvervs- og institutionsformål.
Tids- og aktivitetsplan
27.09.2023: Fra og med denne dato kan der indsendes arealansøgninger til byggefeltet.
18.10.2023: Kl. 16:00 lukker første omgang af modtagelse af arealansøgninger til byggefelterne nr. 24, 27, 28, 30, 12, 13.
08.11.2023: Kl. 16:00 lukker første omgang af modtagelse af arealansøgninger til byggefelt nr. 29 (dagligvarebutik).
Hvis der indkommer flere kvalificerede ansøgere til samme byggefelt, vil det gennem lodtrækning blive afgjort, hvem der får arealtildeling.
Herefter kan der til enhver tid søges om arealtildeling, hvis byggefeltet fortsat er ledigt.
Kommuneplantillægget kan ses på kommunens hjemmeside www.avannaata.gl eller på kommuneplanens hjemmeside https://kommuneplania.avannaata.gl/dk/hoeringer/godkendt/
Kommuneplantillæg‚ Ny kirkegård‘ for Delområde D03 i Upernavik, er vedtaget.
Kommuneplantillæggets formål.
Pladsen på den eksisterende kirkegård, i den sydlige del af Upernavik, er ved at være opbrugt.
Kommuneplantillæg nr. 20 for detailområde 1600-D03 er lavet for at muliggøre en ny kirkegård, der kan dække byens behov for begravelsespladser for fremtiden.
Det nye kirkegården er et mindre areal end det tidligere forslag, fordi at bakken især bliver brugt som kælkebakke.
Kommuneplantillægget kan læses ved at følge dette link: https://kommuneplania.avannaata.gl/media/4401/kpt-upernavik-ny-kirkegaard-ob.pdf
Vejledning
Råd og vejledning kan fås ved henvendelse til Planafdelingen på mail: plania@avannaata.gl.
Kommuneplantillægget har til formål at skabe mulighed for opførelse af flere større turisthytter i området.
Kommuneplantillægget er offentligt bekendtgjort den 04.08.2023, fra hvilken dato kommuneplantillægget har retsvirkning.

Kommuneplantillæggets formål
Formålet med dette kommuneplantillæg er at styrke området ved Aattartoq ved at udlægge mulighed for etablering af flere større turisthytter. Fastlæggelse af nye bestemmelser for delområdet, skal finde grundlag for fremtidig kommerciel turisme, hvor der åbnes op for flere ansøgere parallelt med at besyttelse af naturen og kulturarven sikres.
Delområdet ligger i Det åbne land, grændser op til Den landskabelige bufferzone for UNESCO ved Ilulissat isfjord og forventes derfor at kunne sees fra UNESCO-området. Færdsel til / fra området må ske inden for fastlagte kørselskorridorer på vinteren med snescooter/ hundeslæde for at ivaretage den sårbare natur.
Med kommuneplantillægget muliggøres arealtildeling til det ansøgte projekt, der har fået meddelt arealreservation.
Samtidig åbnes der op for nye arealtildelinger for hytter området.
Kommuneplantillægget kan ses på kommunens hjemmeside www.avannaata.gl eller på kommuneplanens hjemmeside https://kommuneplania.avannaata.gl/dk/hoeringer/godkendt/

Offentlig bekendtgørelse - Kommuneplantillæg nr. 33 for DELOMRÅDE ILU 1200-A10, ”Jørgen Guldagerip Aqqutaa”, Ilulissat er endeligt vedtaget.
Kommuneplantillægget er offentligt bekendtgjort den 22.05.2023, fra hvilken dato tillægget har retsvirkning.
Kommuneplantillæggets formål
Kommuneplantillægget udlægger et nyt detailområde, med formål at muliggøre byfornyelse af de kommunale udlejningsboliger, beliggende langs Edvard Sivertsen-Ip Aqquserna.
Byfornyelsen i området består grundlæggende af to dele; renovering og nybygning. Renoveringsdelen omfatter de eksisterende rækkehuse. Bebyggelsens tidligere kedelcentral nedrives for at give plads til opførsel af et nyt etagehus i op til 4 etager. Derudover udlægges der byggefelter til boliger i mellemrummene mellem eksisterende rækkehuse.
Ud over den bygningsmæssige fornyelse, udlægger kommuneplantillægget også principperne for udearealernes fremtidige udformning og anvendelse.
Kommuneplantillægget har været i høring og blev sendt ud i 2 ugers forlænget høring d. 02.11.2022 til d. 16.11.2022 da der efter første høringsperiode blev foretaget en mindre justering af et enkelt punkt i bestemmelserne.
Kommuneplantillægget kan læses ved at følge dette link: Kommuneplantillæg nr 33.
Kommuneplantillæg nr. 38 for Delområde 0003-L01, Eqi
Kommuneplantillægget er offentligt bekendtgjort den 26.04.23, fra hvilken dato kommuneplantillægget har retsvirkning.
Kommuneplantillæg nr. 38 for Delområde 0003-L01, Eqi
Kommuneplantillæggets formål
Kommuneplantillægget omfatter det rekreative område ved Eqip Sermia, der er en af Grønlands mest aktive gletsjere. Området, der er en del af det åbne land, ligger ca. 70 km nord for Ilulissat og er et populært udflugtsmål for turister.
Kommuneplantillæggets formål er at sikre mulighed for etablering af ny bebyggelse og anlæg. Konkret sikres mulighed for at der kan opføres nye turisthytter og teltpladser med tilhørende service- og fællesbygninger samt sanitets-, vand- og energianlæg. Endelig skal planen sikre friholdelse af den eksisterende vandresti ind til Indlandsisen, der forløber nord-syd gennem området.
Kommuneplantillægget kan ses på kommunens hjemmeside http://www.avannaata.gl eller på kommuneplanens hjemmeside https://kommuneplania.avannaata.gl/dk/hoeringer/godkendt/
Kommuneplantillægget er offentligt bekendtgjort den 10.03.2023, fra hvilken dato kommuneplantillægget har retsvirkning.
Kommuneplantillæg nr. 35 til Kommuneplan Avannaata Kommunia 2018-2030 med tillæg.
Kommuneplantillæggets formål
Kommuneplantillæggets primære formål er at udlægge området til boliger i form af blandet boligbebyggelse. I den forbindelse udvides afgrænsningen for delområde 1200-A21, og der fastlægges nye detaljerede bestemmelser for detailområde A21.2, hvor der gives mulighed for at etablere åben-lav og tæt-lav boligbebyggelse. Kommuneplantillægget fastlægger desuden bestemmelser for udlæg af interne veje og parkering.
Med kommuneplantillægget muliggøres arealtildeling til det ansøgte projekt, der har fået meddelt arealreservation.
Kommuneplantillægget er udarbejdet på baggrund af en projektansøgning fra KJ Greenland A/S.Projektansøgning har været annonceret i perioden 07. 12.2022 til 01.02.2023 iht. § 45a i Inatsisartutlov om planlægning og arealanvendelse.
Der er ikke modtaget indsigelser eller bemærkninger til projektansøgningen i høringsperioden, og der er ikke modtaget alternative projektforslag.
Kommunalbestyrelsen har besluttet at meddele arealreservation til projektet.
Kommuneplantillægget er offentligt bekendtgjort den 20.12.2022, fra hvilken dato kommuneplantillægget har retsvirkning.
Kommuneplantillæggets formål
Dette kommuneplantillæg opdaterer det gældende plangrundlag for Delområde 1200-C24, som blev vedtaget i 2021.
Kommuneplantillæggets primære formål er at muliggøre opførelse af ny bebyggelse til centerformål ved at fastlægge overordnede og detaljerede bestemmelser for delområdet, så den videre byudvikling af Ilulissat kan ske mod nord.
Bebyggelsesplanen er justeret, således at der udlægges fire byggefelter inden for delområdet, som må rumme fælles formål som politistation, institution og heldagsskole samt bymæssige funktioner som hotel o.l.
Ledigt byttefelt
Samtidigt bekendtgøres det hermed, at der kan der søges om arealtildeling til det ledige byggefelt: Byggefelt 1 (hotel) annonceres ledigt i 6 uger i henhold til kommuneplanens bestemmelse §5.3 om ledige byggefelter til erhvervs- og institutionsformål.
Tids- og aktivitetsplan
20.12.2022: Fra og med denne dato kan der indsendes arealansøgninger til byggefeltet.
07.02.2023: Kl. 16:00 lukker første omgang af modtagelse af arealansøgninger til byggefeltet.
Hvis der indkommer flere kvalificerede ansøgere til samme byggefelt, vil det gennem lodtrækning blive afgjort, hvem der får arealtildeling.
Herefter kan der til enhver tid søges om arealtildeling, hvis byggefeltet fortsat er ledigt.
Kommuneplantillægget er offentligt bekendtgjort den 13.12.2022, fra hvilken dato kommuneplantillægget har retsvirkning.
Kommuneplantillæggets formål
Formålet med kommuneplantillægget er at fastlægge bestemmelser for detailområde A29.3, så der konkret åbnes mulighed for en udvidelse af hotellet. Hoteludvidelsen placeres bl.a. på et areal, som tidligere var planlagt til etageboligbebyggelse.
Kommuneplantillægget er udarbejdet på baggrund af en projektansøgning fra Indenlandsk Sømandsmission. Projektansøgning for udvidelse af hotellet har været annonceret i perioden 7. juli 2020 til 18. august 2020 iht. § 45a i Inatsisartutlov om planlægning og arealanvendelse.
Der er ikke modtaget indsigelser eller bemærkninger til projektansøgningen i høringsperioden, og der er ikke modtaget alternative projektforslag. Kommunalbestyrelsen har besluttet at meddele arealreservation til projektet samt at udarbejde dette kommuneplantillæg for at tilvejebringe det nødvendige plangrundlag for arealtildeling til den ønskede udvidelse.
Kommuneplantillægget er offentligt bekendtgjort den 17.06.2022, fra hvilken dato kommuneplantillægget har retsvirkning.
Kommuneplantillæggets formål
I forbindelse med anlæggelsen af lufthavnsudvidelsen i Ilulissat er der behov for asfalt til den nye landingsbane og til forlængelsen af lufthavnsvejen ud til den nye lufthavnsterminal.
Dette kommuneplantillæg udlægger et nyt delområde til tekniske formål, Delområde E13, som kan anvendes til asfaltværk tæt på lufthavnsområdet. Delområdet er i dag en del af et stort friholdt område nordøst for Ilulissat. Delområdet omfatter et areal på cirka 2,3 ha, som henligger i ubebygget naturtilstand.
Kommuneplantillæggets formål er at fastlægge anvendelsen af Delområde E13 til tekniske formål i form af asfaltværk, og at fastlægge bestemmelser for anlæggets placering og omfang, herunder anlæggets maksimale højde. Byens eksisterende asfaltværk kan således justeres og flyttes til det nye delområde.
Under den offentlige høring modtog kommunen to indsigelser til forslaget til kommuneplantillægget. Disse har ikke givet anledning til ændringer af indholdet i det endelige kommuneplantillæg, men Udvalget for Teknik har besluttet, at asfaltværket skal flyttes til en anden placering igen, inden den nye lufthavn tages i brug.
Kommuneplantillægget er offentligt bekendtgjort den 17.06.2022, fra hvilken dato kommuneplantillægget har retsvirkning.
Kommuneplantillæggets formål
Formålet med kommuneplantillægget er at udlægge et mindre detailområde indenfor den landskabelige bufferzone og fastlægge bestemmelser for detailområdet, som regulerer forhold vedrørende anvendelsen af hytten samt hyttens størrelse, placering og udseende.
Under den offentlige høring af forslaget til kommuneplantillægget er der indkommet en indsigelse samt nogle forslag til præciseringer og ændringer af kommuneplantillæggets indhold.
Fra Departementet for Landbrug, Selvforsyning, Energi og Miljø lægges der vægt på, at formålet med den landskabelige bufferzone omkring Ilulissat Isfjord er at sikre, at områdets Outstanding Universal Value opretholdes og beskyttes, og at den landskabelige bufferzone så vidt muligt bør friholdes for bebyggelse og anlæg. Det præcisres derfor i det endelige kommuneplantillæg, at der er tale om et enkeltstående tilfælde af juridisk lovliggørelse af privat byggeri i bufferzonen, og at adgang til hytten med motoriserede befordringsmidler skal ske i overensstemmelse med den kommunale vedtægt for anvendelse af motoriserede befordringsmidler i det åbne land. Derudover fastholder det enedelige kommuneplantillæg, at der ikke skal være mulighed for at etablere yderlige anlæg eller byggeri indenfor det udlagte detailområde udover den eksisterende hytte.
Kommuneplantillægget er offentligt bekendtgjort den 17.06.2022, fra hvilken dato kommuneplantillægget har retsvirkning.
Kommuneplantillæggets formål
Sannassisoq ApS ønsker at etablere personaleboliger i nærhed til virksomhedens aktiviteter. Der er konkret ansøgt om ændret anvendelse for en del af Sannassisoq ApS eksisterende erhvervsarealtildeling i delområde 1200-B08.
I den forbindelse udvides afgrænsningen for det tilgrænsende boligområde 1200-A26 til at omfatte det ansøgte areal.
Kommuneplantillægget fastlægger nye detaljerede bestemmelser for detailområde A26.4, hvor der gives mulighed for at etablere etageboligbebyggelse. I detailområdet udlægges ét nyt byggefelt, hvor der kan opføres ny bebyggelse i maks. 2 etager med op til 8 boliger.
Der er ikke indkommet nævneværdige bemærkning til forslaget til kommuneplantillægget under høringsperioden, og kommuneplantillægget er endeligt vedtaget uden ændringer af indholdet.
Kommuneplantillægget er offentligt bekendtgjort den 17.06.2022, fra hvilken dato kommuneplantillægget har retsvirkning.
Kommuneplantillæggets formål
I tilfælde af at en tsunami rammer Uummannaq-området, er det nødvendigt at kunne opretholde driften af lufthavnen i Qaarsut, da den vil indgå i beredskabet. Da de eksisterende boligområder i Qaarsut og vejen fra byen til lufthavnen kan blive ramt ved en tsunami, er der behov for at opføre boliger til luftshavnspersonalet i nærheden af lufthavnen.
Kommuneplantillægget udvider delområdegrænsen for centerområdet C02 i Qaarsut og fastlægger nye overordnede bestemmelser for delområdet. Dette vil gøre det muligt at opføre personaleboliger til lufthavnspersonalet inden for delområdet.
Der er ikke indkommet nævneværdige bemærkning til forslaget til kommuneplantillægget under høringsperioden, og kommuneplantillægget er endeligt vedtaget uden ændringer af indholdet.
Kommuneplantillægget er offentligt bekendtgjort den 17.06.2022, fra hvilken dato kommuneplantillægget har retsvirkning.
Kommuneplantillæggets formål
Baggrunden for dette kommuneplantillæg er et ønske om at udvide boligområdet i Qeqertaq. Det er et ønske lokalt og i Avannata Kommunia, at boligforholdene i bygden forbedres for at undgå fraflytning. Dette kan primært ske ved erstatningsbyggeri i forbindelse med sanering, da det eksisterende boligområde stort set er fuldt udnyttet. Med dette kommuneplantillæg skabes der mulighed for at opføre enkelte nye boliger, idet boligområdet Delområde A01 udvides og der fastlægges nye overordnede bestemmelser for delområdet. Formålet er således at imødekomme en konkret efterspørgsel, og at Qeqertaq kan fortsætte med at udvikle sig i fremtiden.
Vedtagelsen af kommuneplantillægget betyder, at der kan indsendes arealansøgninger til ny boligbebyggelse indenfor det udvidede delområde.
Kommuneplantillægget er offentligt bekendtgjort den 09.03.2022, fra hvilken dato kommuneplantillægget har retsvirkning.
Kommuneplantillæggets formål
Kommuneplantillæggets primære formål er at muliggøre deponi af overskudsjord i form af opgravet sediment fra havbunden i forbindelse med anlægsarbejdet for den nye lufthavn.
I forbindelse med byggeri og anlæg skal der foretages nedsprængning af fjeld, afrømning af dækjord og permafrossen jord, samt opfyldning af vådområder mv. En del af anlægsarbejdet sker på søterritoriet. Ved opfyld ved kysten skal der fjernes en stor mængde havbundssedimenter for at sikre fast bund til anlægsarbejdet.
Med kommuneplantillægget fastlægges byggeområder med tilhørende detaljerede bestemmelser, der muliggør deponi af overskudsjord i form af opgravet sediment med indhold af saltvand og tilhørende midlertidig bebyggelse, samt redningsstation med permanent karakter.
Kommuneplantillægget er offentligt bekendtgjort den 19.8.2021, fra hvilken dato kommuneplantillægget har retsvirkning.
Kommuneplantillæggets formål
Kommuneplantillægget er blevet til på baggrund af en projektansøgning fra Hotel Icefiord.
Målet med planen er at sikre, at der er mulighed for at udvide hotelfaciliteterne i området, at den gamle anløbsbro kan tages i brug og samtidig sikre et sammenhængende byområde. Derfor udlægges der to nye byggefelter til aktiviteter der knytter sig til hotelvirksomhed og ændres på detailområdegrænserne, så anløbsbroen er placeret i ét detailområde.
Kommuneplantillægget muliggør at bygninger i området kan fremstå umalede og at der ved etablering af parkeringspladser kan opstilles ladestandere til elbiler.
I den tidligere plan for området, var der særlige bestemmelser tilknyttet b-1793. Det nye kommuneplantillæg udlægger et byggefelt omkring bygningen, så disse bestemmelser nu er tilknyttet byggefeltet i stedet for b-nummeret.
Kommuneplantillægget har været i offentlig høring i 6 uger fra den 8.6.2021 til 30.07.2021, inden for hvilke borgere, virksomheder m.fl. har haft mulighed for at fremsætte indsigelser, bemærkninger og ændringsforslag.

Kommuneplantillæggets formål:
Kommunalbestyrelsens udvalg for teknik har valgt at godkende Kommuneplantillæg nr. 13, der muliggør en udvidelse af erhvervsområdet, delområde B07. Udvidelsen skal bruges til oplag af materiale til betonelementer, som skal bruges i de mange byggerier, der er i gang i Ilulissat. Derfor planlægges der for en udvidelse af KJ Greenland A/S’ eksisterende entreprenørplads med mulighed for opførsel af bebyggelse til erhvervsformål, arealer til støbning af betonelementer og etablering af arealer til oplag af byggematerialer, containere mm. Det udvidede areal er reserveret til KJ Greenland A/S gennem den forudgående projekthøring.
Portnerboliger
Derudover muliggør kommuneplantillægget som noget nyt, at der kan etableres portnerboliger i tilknytning til virksomheder i hele Delområde B07.
Kommuneplantillæggets formål
Kommuneplantillægget fastlægger nye overordnede og detaljerede bestemmelser for delområde C24, for at muliggøre bebyggelse til offentlige formål som politistation, institution, offentlig administration, butik og hotel. Derudover udlægger kommuneplantillægget enkelte byggefelter til boliger (tæt-lav boligbebyggelse).
Kommuneplantillægget afviger fra det tidligere offentliggjorte forslag på følgende punkter:
- Byggefelt 1(hotel) kan også anvendes til offentlig administration. Byggefeltet kan anvendes til hotel, hvis behovet for ny bebyggelse til offentlig administration bortfalder eller opfyldes på anden vis. Byggefeltet vil i så fald blive annonceret som ledigt. Bygningshøjden fastholdes på maks. 15 meter, men etageantallet er fjernet.
- På byggefelt 2 (politistation) er der mulighed for at udføre bebyggelse med asymmetrisk sadeltag. Den maksimale kipkote for byggefeltet er hævet med 1 meter og terrænkoten med 0,5 meter.
- Bebyggelsens ydervægge må også fremstå som naturligt patinerede eller med transparent træbeskyttelse.
- Byggefelt 5, 6 og 7 (boliger) er justeret lidt med hensyn til størrelse og placering samt placering af tilhørende p-pladser.
- Grundet delområdets beliggenhed ved drikkevandssøen er der tilføjet forskellige betingelser for byggeri og anlæg for at undgå forurening af søen. Af samme årsag er byggefelt 1 gjort lidt mindre og tilhørende p-pladser er flyttet, så de ikke ligger direkte op ad grænsen til beskyttelseszonen for søen.
Ledige byttefelter
Samtidigt bekendtgøres det hermed, at der kan der søges om arealtildeling til de ledige byggefelter. Byggefelt 3 (butik) og byggefelt 4 (institution) annonceres ledige i 6 uger i henhold til kommuneplanens bestemmelse §5.3 om ledige byggefelter til erhvervs- og institutionsformål. Byggefelt 5, 6 og 7 (boliger) annonceres ledige i 3 uger i henhold til kommuneplanens bestemmelse §5.2 om ledige byggefelter til boligformål.
Tids- og aktivitetsplan
30.06.2021: Fra og med denne dato kan der indsendes arealansøgninger til byggefelterne.
21.07.2021: Kl. 16:00 lukker første omgang af modtagelse af arealansøgninger til byggefelt 5, 6 og 7.
11.08.2021: Kl. 16:00 lukker første omgang af modtagelse af arealansøgninger til byggefelt 3 og 4.
Hvis der indkommer flere kvalificerede ansøgere til samme byggefelt, vil det gennem lodtrækning blive afgjort, hvem der får arealtildeling.
Herefter kan der til enhver tid søges om arealtildeling, hvis byggefeltet fortsat er ledig
Kommuneplantillægget er offentligt bekendtgjort den 23.02.2021, fra hvilken dato kommuneplantillægget har retsvirkning.
Kommuneplantillæggets formål
Kommuneplantillæg er udarbejdet på baggrund af en projektansøgning fra Avannaa Fisheries ApS. Projektansøgningen for opførelse af en ny fiskefabrik har været annonceret i perioden 17. juni 2020 til 29. juli 2020 iht. § 45a i Inatsisartutlov om planlægning og arealanvendelse.
Kommuneplantillægget har til formål at sikre en hensigtsmæssig videreudvikling af det eksisterende erhvervsområde ved at udlægge et nyt byggefelt samt detaljerede bestemmelser, som fastlægger rammerne for opførelsen af Avannaa Fisheries‘ nye fabrik.
Med kommuneplantillægget muliggøres arealtildeling til det ansøgte projekt, der har fået meddelt arealreservation.
Kommuneplantillægget er offentligt bekendtgjort den 23.02.2021, fra hvilken dato kommuneplantillægget har retsvirkning.
Kommuneplantillæggets formål
Kommuneplantillæggets primære formål er at udlægge nye delområder, hvor der gives mulighed for at opføre nye boliger og bebyggelse til erhvervsformål og centerformål. Så Qeqertat i fremtiden kan udvikle sig i takt med erhvervsgrundlagets udvikling.
Planen omfatter nye overordnede bestemmelser for seks delområder og detaljerede bestemmelser for områder til erhvervs-og havneformål, centerformål og tekniske anlæg, som fastlægger byggefelter og retningslinjer for etablering af ny bebyggelse i disse områder.
Kommuneplantillægget er offentligt bekendtgjort den 21.10.2020, fra hvilken dato kommuneplantillægget har retsvirkning.
Kommuneplantillæggets formål
Avannaata kommunia har igennem det seneste år gennemført et pilotprojekt i Uummannaq, hvor en ny metode til håndtering af forbrændingsegnet dagrenovationsaffald er blevet afprøvet og undersøgt. Ved at udlægge et nyt delområde til opførelse af en modtagerstation, kan der skabes mulighed for en mere optimal og fremtidssikret håndtering af affaldet.
Modtagestationen skal rumme maskinelt udstyr til sortering, presning og emballering af affald, således at genanvendeligt affald kan sorteres fra og sendes videre til genanvendelse. Derudover skal modtagestationen have tilhørende mandskabsfaciliteter som frokoststue og omklædning.
Delområdet kan desuden anvendes til forbrændingsanlæg, skibskirkegård og oplag af metalskrot. Der lægges dog op til en nødvendig oprydning af området, som også i dag fungerer som skibskirkegård. Kommuneplantillægget giver også mulighed for etablering af f.eks. pontonbroer eller opfyldning af søterritoriet.
Kommuneplantillægget er offentligt bekendtgjort den 14.05.2020, fra hvilken dato kommuneplantillægget har retsvirkning.
Kommuneplantillæggets formål
Planen omfatter fastlæggelse af nye overordnede og detaljerede bestemmelser for delområdet, for at muliggøre ny bebyggelse til blandede boliger i form af enfamiliehus, dobbelthuse, rækkehuse og etagebebyggelse.
Kommuneplantillægget er udarbejdet på baggrund af en projektansøgning fra KJ Greenland A/S. Projektansøgning for opførelse af boligbebyggelse med åbent-lav og tæt-lav boligbebyggelse har været annonceret i perioden 9. januar 2020 til 20. februar 2020 iht. § 45a i Inatsisartutlov om planlægning og arealanvendelse.
Da projektansøgningen blev ændret, således at det ene byggefelt blev udvidet til 3 etager med henblik på reservation af dette byggefelt til personaleboliger for Air Greenland A/S, blev annonceringen forlænget med perioden 24. februar 2020 til 9. marts 2020.
Avannaata Kommunia har efter vurdering af høringssvar givet arealreservation til KJ Greenland A/S til byggefelt nr. 3-13 og til Air Greenland A/S til byggefelt nr. 1.
Ledigt byggefelt
Samtidigt bekendtgøres det hermed, at der kan der søges om arealtildeling til det ledige byggefelt. Byggefeltet annonceres ledigt i 3 uger i henhold til kommuneplanens bestemmelse §5.2 om ledige byggefelter til bolig og foreningsformål.
Tids- og aktivitetsplan
14.05.2020: Fra og med denne dato kan der indsendes arealansøgninger til arealerne.
04.06.2020: Kl. 16:00 lukker første omgang af modtagelse af arealansøgninger.
Herefter kan der til enhver tid søges om arealtildeling, hvis byggefeltet fortsat er ledigt.
Offentlig bekendtgørelse af kommuneplantillæg nr. 6 - Mathias Storch Skolen, Ilulissat
11.01.2020
Kommunalbestyrelsens udvalg for teknik har valgt at godkende kommuneplantillæg nr. 6, der muliggør en legeplads ved Mathias Storch Skolen. Kommuneplantillægget er offentligt bekendtgjort den 11.01.2020, fra hvilken dato det har retsvirkning.
Ledige byggefelter
Samtidig bekendtgøres det hermed, at der kan der søges om arealtildeling til de ledige byggefelter. Byggefelterne annonceres ledige i 3 uger i henhold til kommuneplanens bestemmelse §5.2 om ledige byggefelter til bolig og foreningsformål.
Kommuneplantillægget har været sat i offentlig høring i perioden: 16.01.2020 til og med 12.03.2020. De modtagne indsigelser er blevet taget til overvejelse, men har ikke givet anledning til ændringer.
Offentlig bekendtgørelse af kommuneplantillæg nr. 8 for erhvervs- og havneområde, Uummannaq
Kommuneplantillægget er offentligt bekendtgjort den 26.03.2020, fra hvilken dato kommuneplantillægget har retsvirkning.
Kommuneplantillæggets formål:
Kommuneplantillæggets primære formål er at udmønte Selvstyrets projekt hvad angår udvidelse af kajanlæg samt nedsprængning af det eksisterende fjeld, som kan frigive plads til nye byggefelter til havnens brug. Derfor skal planen sikre, at det eksisterende havneområde udbygges hensigtsmæssigt, således at nuværende som fremtidige erhvervsvirksomheder får bedst mulige vilkår for etablering og udvikling af fiskeri- og havneerhvervet, samt at der hovedsageligt kan placeres virksomheder, der har behov for en havnenær placering.
Derudover skal kommuneplantillægget sikre, at gener mellem de enkelte virksomheder minimeres, såsom lette den nuværende trængte infrastruktur, at havneområdet gives at vist helhedspræg, samt at der kan etableres virksomheder, som på grund af miljøbelastning og bygningshøjde er vanskelige at placere andre steder i byen.
Ændringsforslaget til kommuneplantillæg nr. 8 ændrer byggefelterne i placering, antal og størrelse. Derudover muliggør planen at realisere ønsket fra Polaroil, om udvidelse af det eksisterende kajanlæg.
Kommuneplantillægget udlægger i alt 4 nye byggefelter. Ét byggefelt til oplag i form af containere. Derudover fastlægges anvendelsesrammerne for byggefelt 4 til fiskefabrik, og de resterende to byggefelter til fiskeri og havne-funktioner, som fiskefabrikker, frysehuse, lagerhus o.lign.
Kommuneplantillægget har været i offentlig høring i 6 uger, inden for hvilke borgere, virksomheder m.fl. har haft mulighed for at fremsætte indsigelser, bemærkninger og ændringsforslag.
Nyt kombihus, Ukkusissat
Hermed offentlig bekendtgøres kommuneplantillægget nr. 5, der muliggør opførelse af et nyt kombihus i det eksisterende centerområde C01
Avannaata Kommunia ønsker at opføre et kombihus i Ukkusissat, som skal anvendes til en integreret institution samt servicefunktioner til bygden som bad og vaskeri.
Det er med baggrund i dette ønske, at nærværende kommuneplantillæg er udarbejdet, da der i dag ikke findes ledige byggefelter i Ukkusissat til dette formål.
Kommuneplantillæggets formål:
Kommuneplantillæggets primære formål er at muliggøre opførelse af et nyt kombihus, som dels skal rumme en daginstitution og dels servicefunktioner for bygden med bad og vaskeri.
Dertil er formålet at muliggøre nyt boligbyggeri i området, hvorfor der udlægges ét nyt ledigt byggefelt.
Kommuneplantillæg nr. 4, der muliggør byggeri af nye kollegiebygninger ved SPS i Ilulissat, er vedtaget
Kommuneplantillæggets formål
Formålet med dette kommuneplantillæg er at sikre at ny bebyggelse opføres i samspil med eksisterende bebyggelse og terrænet, samt at sikre områdets anvendelse til centerformål til offentlige institutioner, kultur- og fritidsformål, kollegier samt boliger.
Helt konkret skal planen udmønte Selvstyrets projekt for kollegiebebyggelse så det stemmer overens med hvad der fra Selvstyrets side er besluttet at opføre.
Planen udlægger desuden nye byggefelter til tæt-lav boliger, så boligudbuddet i Ilulissat gøres lidt større og mere varieret.
Ledige byggefelter
Samtidig bekendtgøres det hermed, at der kan der søges om arealtildeling til de ledige byggefelter. Byggefelterne annonceres ledige i 3 uger i henhold til kommuneplanens bestemmelse §5.2 om ledige byggefelter til bolig og foreningsformål.
20.01.20: Fra og med denne dato kan der indsendes arealansøgninger til arealerne.
10.02.20: Kl. 16:00 lukker første omgang af modtagelse af arealansøgninger.
Herefter kan der til enhver tid søges om arealtildeling, hvis byggefeltet fortsat er ledigt.
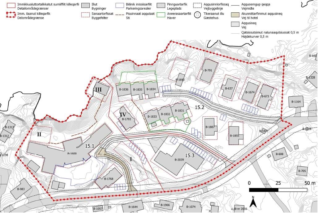
Offentlig bekendtgørelse af kommuneplantillæg nr. 10 for Sermermiut Aqqutaa, Ilulissat
Kommuneplantillæggets formål:
Kommuneplantillæggets primære formål er, at muliggøre indretning og nybyggeri til centerformål i form af enfamiliehuse, personaleboliger, liberalt erhverv, restaurant og centerfunktion. Der udlægges 8 byggefelter, samt gives mulighed for at bygge i to etager i delområdet.
Der udlægges nye byggefelter og gives mulighed for nybyggeri ved saneringsmodne bygninger og på steder hvor nye byggefelter er placeret.
Området udvides, så bygning B-1725 bliver indbefattet som en del af delområde C-21. Så boligen fremadrette vil indgå i centerområde og autoværkstedet vil indgå i erhvervsområde B07.
Kommuneplantillægget har været i offentlig høring i 8 uger, inden for hvilke borgere, virksomheder m.fl. har haft mulighed for at fremsætte indsigelser, bemærkninger og ændringsforslag.
Offentlig bekendtgørelse af kommuneplantillæg nr. 11 for ny læmole i Uummannaq
Kommuneplantillægget er offentligt bekendtgjort den 14.01.2020, fra hvilken dato kommuneplantillægget har retsvirkning.
Kommuneplantillæggets formål:
Kommuneplantillæggets primære formål er at muliggøre opførsel af en læmole, der skal sikre bedre forhold for joller og både i havnebassinet. Primært således at arealer frigives i havneanlægget ved skonnertkajen, ved at joller og mindre fiskefartøjer flyttes til Kangerlloqqissoq/Smørhavnen. Kommuneplantillægget fastlægger
overordnede og detaljerede bestemmelser for delområde 1500-B02. Områdets anvendelse fastlægges til Erhvervs- og havneområde.
Kommuneplantillægget har været i offentlig høring i 8 uger, inden for hvilke borgere, virksomheder m.fl. har haft mulighed for at fremsætte indsigelser, bemærkninger og ændringsforslag.
Justering af vejadgang for delområde A13, Ilulissat (Godkendt)
Hermed offentligt bekendtgøres kommuneplantillæg nr. 9 der justere vejadgang i boligområde A14
Kommuneplantillæggets formål:
I januar 2018 blev kommuneplantillæg nr. 56 vedtaget, som udlagde et nyt boligområde, benævnt A13, ved Sisorarfik og Hafnarfjodur-ip Aqquserna i Ilulissat. Siden da er det udlagte byggefelt blevet bebygget og der ønskes fra bygherre nu vejadgang fra Hafnarfjodur-ip Aqquserna i stedet for fra Sisorarfik, som kommuneplantillæg nr. 56 ellers foreskriver.
Nærværende kommuneplantillæg nr. 9 er derfor en udmøntning heraf og indeholder alene en justering af kommuneplantillæg nr. 56 i forhold til vejadgange. Kommuneplantillæggets redegørelsesdel, bestemmelser og kortbilag er således de samme som i det forudgående tillæg (nr. 56) blot med ændringer i forhold til områdets vejadgang.
Kommuneplantillægget har været i offentlig høring i 6 uger, inden for hvilke borgere, virksomheder m.fl. har haft mulighed for at fremsætte indsigelser, bemærkninger og ændringsforslag.
Kommuneplantillæg til nr. 7, der fastlægger bestemmelser for fiskefabrik i Upernavik i Nuussuaq, er vedtaget.
Kommuneplantillægget skal muliggøre udvidelsen af Royal Greenlands fiskefabrik i Nuussuaq. Dette sker ved at udlægge ét nyt byggefelt til formålet samt gennem en udvidelse af delområdet B01.
Kommuneplantillægget har været i offentlig høring i 8 uger, inden for hvilke borgere, virksomheder m.fl. har haft mulighed for at fremsætte indsigelser, bemærkninger og ændringsforslag.
D. 18.06.2019
Kommuneplantillægget er vedtaget af Udvalg for Infrastruktur, Anlæg og Miljø d. 17.06.2019.
Kommuneplantillæggets formål
Fastlæggelse af overordnede og detaljerede bestemmelser for nyt delområde for at muliggøre et midlertidigt sprængstofdepot i detailområde E05.1 og E05.2 i forbindelse med anlægsarbejdet for udvidelse af lufthavnen i Ilulissat, samt planlægning for et permanent sprængstofdepot i detailområde E05.1.
Kommuneplantillægget har været i offentlig høring i 6 uger, inden for hvilke borgere, virksomheder m.fl. har haft mulighed for at fremsætte indsigelser, bemærkninger og ændringsforslag.
D. 17.04.2019
Offentlig bekendtgørelse af kommuneplantillæg nr. 1 for erhvervsområde (B03) i Upernavik til fiskefabrik, oplagsplads og entreprenørvirksomhed.
Kommuneplantillæggets formål
Kommuneplantillægget skal muliggøre byggeriet af en fiskefabrik i Upernavik samtidigt med, at det sikre muligheden for nye oplags- og entreprenørarealer. Der udlægges nye byggefelter og byggeområder til erhvervsformål samtidigt med, at der defineres en samlet vejstruktur for delområdet.
Samtidigt offentliggøres 6 ledige byggeområder til oplagsplads og entreprenørvirksomhed
Du kan søge om arealtildeling til de ledige byggeområder via NunaGIS eller ved at hente og udfylde en ansøgningsblanket fra kommunens hjemmeside: www.avannaata.gl. Der kan kun søges med én ansøgning fra samme person eller firma, der fremstår som én og kun én juridisk enhed. Alle ansøgninger vil blive vurderet ud fra det tilsendte materiale. Hvis der er indkommet flere lige kvalificerede ansøgninger til byggefeltet, vil kommunen foretage en lodtrækning.
Alle ansøgninger skal indeholde følgende:
1. Skitseforslag, der redegør for byggeriets placering, udseende og materialer.
2. Oplysning om anvendelse.
3. Oplysning om tekniske installationer.
4. Økonomiske oplysninger, som dokumenterer, at det ansøgte kan realiseres.
Tids- og aktivitetsplan:
17.04.19: Fra kl. 09:00 kan der indsendes arealansøgninger til arealerne.
29.05.19: Kl. 16:00 lukker første omgang af modtagelse af arealansøgninger.
Herefter kan der til enhver tid søges om arealtildeling, hvis byggefeltet fortsat er ledigt.
D.29.03.2019
Dette kommuneplantillæg fastlægger nye overordnede og detaljerede bestemmelser for delområde A30. Idet at der udlægges nye byggefelter, samt ét af de eksisterende byggefelter reguleres, så det bliver muligt at bygge i to etager.
Fra høringsperioden til kommuneplantillæggets offentlige bekendtgørelse er der sket en ændring i byggefelternes placering og antal. Et byggefelt er udgået, for at gøre plads til en fremtidig vej til et nyt boligområde i forhold til en større bebyggelsesplan ved søområdet.
Kommuneplantillæggets formål:
Fastlæggelse af overordnede og detaljerede bestemmelser for delområde A30 for at muliggøre nybyggeri til boligformål.
I forbindelse med udarbejdelsen af plangrundlaget, udlægges der 3 nye nummerede byggefelter på den anden side af vejen Akinnguata Qaava. Byggefelterne vil blive placeret langs vejen, der ligger i udkanten af vandspærrezonen.
Ledige byggefelter
Samtidig bekendtgøres det hermed, at der kan der søges om arealtildeling til de ledige byggefelter. Byggefelterne annonceres ledige i 3 uger i henhold til kommuneplanens bestemmelse §5.2 om ledige byggefelter til bolig og foreningsformål.
Du kan søge om arealtildeling til de ledige byggefelter via NunaGIS eller ved at hente og udfylde en ansøgningsblanket fra kommunens hjemmeside: www.avannaata.gl. Der kan kun søges med én ansøgning fra samme person eller firma, der fremstår som én og kun én juridisk enhed. Alle ansøgninger vil blive vurderet ud fra det tilsendte materiale. Hvis der er indkommet flere lige kvalificerede ansøgninger til byggefeltet, vil kommunen foretage en lodtrækning.
Tids- og aktivitetsplan
29.03.19: Fra og med denne dato kan der indsendes arealansøgninger til arealerne.
24.04.19: Kl. 16:00 lukker første omgang af modtagelse af arealansøgninger.
Herefter kan der til enhver tid søges om arealtildeling, hvis byggefeltet fortsat er ledigt.
D. 11.03.2019
Dette kommuneplantillæg omhandler etableringen af et nyt elevhjem, et fritidshjem samt en større udbygning og renovering af døgninstitutionen Sungiusarfik Ikinngut, i Ilulissat. Disse tre institutioner skal bygges inden for samme centerområde benævnt C27.
Fastlæggelse af overordnede og detaljerede bestemmelser for nyt delområde for at muliggøre udbygning af døgninstutionen Sungiusarfik Ikinngut, samt opførsel af nyt elevhjem og fritidshjem.
Kommuneplantillægget har været i offentlig høring i 8 uger, inden for hvilke borgere, virksomheder m.fl. har haft mulighed for at fremsætte indsigelser, bemærkninger og ændringsforslag.
D. 13.02.2019
Vedtagelse af ny plan for centerområde til hotel/indkvartering, ny daginstitution og dagligvarebutik i Uummannaq.
I takt med at Uummannaq udbygges mod nordvest (boligområde A12) er der tilsvarende behov for yderligere centerfunktioner i byen. Med dette kommuneplantillæg udlægges derfor byggefelter til centerformål i form af daginstitution, detailhandel, boliger samt hotel og lignende indkvartering.
Dette kommuneplantillæg er blevet godkendt af kommunalbestyrelsen og kommuneplantillæg nr. 68 offentligt bekendtgøres derfor.
Kommuneplantillæggets formål:
Formålet med planen er at udlægge centerfunktioner, som primært kan betjene den vestlige del af Uummannaq. Kommuneplantillægget giver mulighed for opførelse af daginstitution, detailhandel, boliger samt hotel og lignende indkvartering.
Kommuneplantillægget har været i offentlig høring i 8 uger, inden for hvilke borgere, virksomheder m.fl. har haft mulighed for at fremsætte indsigelser, bemærkninger og ændringsforslag.
Klik her for at se Kommuneplantillæg nr. 68
Ledige byggefelter
Samtidig bekendtgøres det hermed, at der kan der søges om arealtildeling til de ledige byggefelter. Byggefelterne annonceres ledige i 6 uger i henhold til kommuneplanens bestemmelse § 5.2 og § 5.3. Der kan ikke søges arealtildeling til byggefelt nr. 2, da dette opføres som offentligt byggeri til en institution.
Du kan søge om arealtildeling til de ledige byggefelter via NunaGIS eller ved at hente og udfylde en ansøgningsblanket fra kommunens hjemmeside: www.avannaata.gl. Der kan kun søges med én ansøgning fra samme person eller firma, der fremstår som én og kun én juridisk enhed. Alle ansøgninger vil blive vurderet ud fra det tilsendte materiale. Hvis der er indkommet flere lige kvalificerede ansøgninger til byggefeltet, vil kommunen foretage en lodtrækning.
Alle ansøgninger skal indeholde følgende:
1. Skitseforslag, der redegør for byggeriets placering, udseende og materialer.
2. Oplysning om anvendelse.
3. Oplysning om tekniske installationer.
4. Økonomiske oplysninger, som dokumenterer, at det ansøgte kan realiseres
Tids- og aktivitetsplan:
13.02.2019: Fra og med denne dato kan der indsendes arealansøgninger til arealerne.
27.03.2019: Kl. 16:00 lukker første omgang af modtagelse af arealansøgninger.
Herefter kan der til enhver tid søges om arealtildeling, hvis byggefeltet fortsat er ledigt.
D. 12.02.2019
Vedtagelse af plan der muliggør opførelse og udvidelse af hotel i 5 etager ved Kaaleeraq Poulsenip Aqq., Ilulissat
Der er tidligere udarbejdet plangrundlag med detaljerede bestemmelser for detailområde C17.5, som ønskes justeret til et konkret behov for at udvide det udlagte byggefelt.
Dette kommuneplantillæg er blevet godkendt af kommunalbestyrelsen og kommuneplantillæg nr. 71 offentligt bekendtgøres derfor.
Kommuneplantillæggets formål:
Fastlæggelse af overordnede og detaljerede bestemmelser for detailområde 1200-C17.5, der muliggør ny bebyggelse til hotelformål i Ilulissat bymidte. Med det nye plangrundlag udlægges et nyt byggefelt til opførelse af hotelbyggeri i op til 5 etager.
Kommuneplantillægget har været i offentlig høring i 8 uger, inden for hvilke borgere, virksomheder m.fl. har haft mulighed for at fremsætte indsigelser, bemærkninger og ændringsforslag
Klik her for at se Kommuneplantillæg nr. 71

























































